
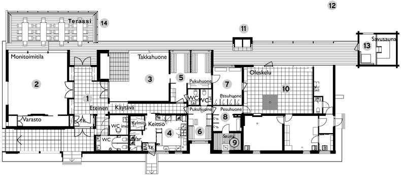
Hangaslahden saunan pohjapiirros ja tilaesittely
Tutustu saunan eri tiloihin ja sen tarjoamiin varusteisiin klikkaamalla numeroita.

Tutustu saunan eri tiloihin ja sen tarjoamiin varusteisiin klikkaamalla numeroita.