Siivikkala

Siivikkalan saunan pohjapiirros ja tilaesittely

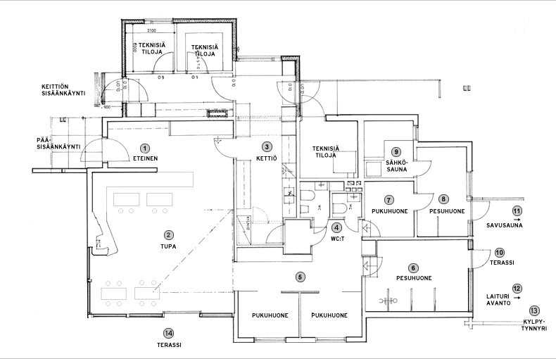
Tutustu saunan eri tiloihin ja sen tarjoamiin varusteisiin klikkaamalla numeroita.

Wc:t Savusauna Pesuhuone Laituri-avanto Terassi Pukuhuone Kylpytynnyri Pukuhuone Keittiö Tupa Eteinen Pesuhuone Sauna Terassi